APARTAMENTO EN SEGUNDA LINEA DE MAR
El Vendrell, Tarragona
Übersicht
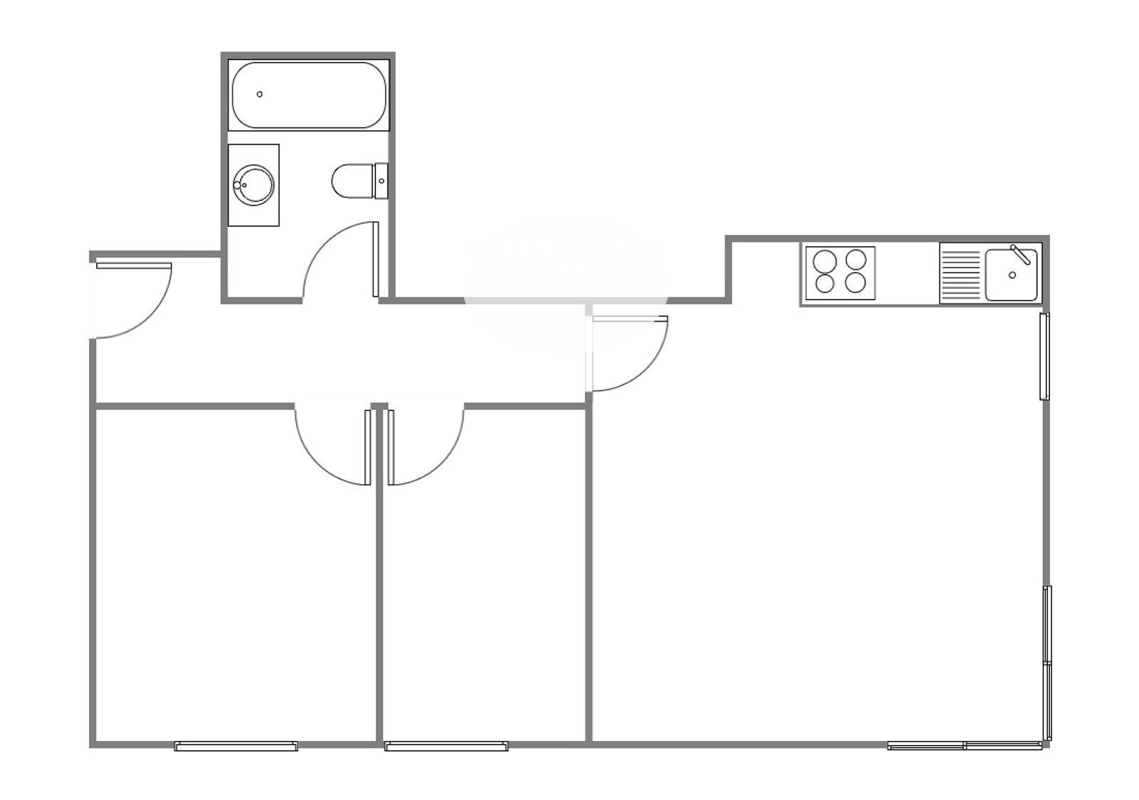
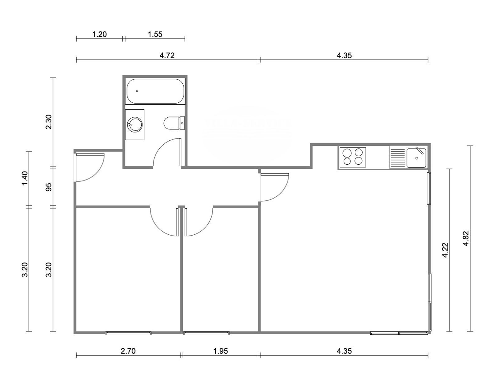
2 Schlafzimmer
1 Badezimmer
73m2
¿Te imaginas vivir a solo unos pasos de la playa? ☀️ Te presentamos este piso de 2 habitaciones en segunda línea de mar en la zona de Sant Salvador, en Calafell, una ubicación privilegiada por su tranquilidad y cercanía al paseo marítimo.La vivienda esta, muy bien conservada y lista para entrar a vivir. Ideal como apartamento de vacaciones , como para disfrutarla los fines de semana junto al mar 🏖️Distribución cómoda y funcional:✨ 2 dormitorios exteriores✨ Salón comedor luminoso✨ Cocina con mobiliario✨ 1 baño completo✨ 2 balcones, perfectos para ventilar y disfrutar del aire mediterráneoUbicada a pocos metros de la playa de Sant Salvador, con todos los servicios a mano: estación, supermercados, restauración y zonas de ocio. Una zona con alta demanda y excelente proyección tanto para vivir como para invertir.📞 Si buscas mar, comodidad y buena ubicación, esta puede ser tu oportunidad. Contáctanos y coordinamos visita sin compromiso.
Ausstattung
- Terrazas
- Calefacción
- Aire acondicionado
- Trastero
- Alarma
- Puerta blindad
- Ascensor
- Segunda línea de playa
199.000€ab/monat
Standort
El Vendrell, Spain






























